国交省のBIM/CIM基準に準拠した各種3Dモデルの作成、パース図の作成を請け負います

WORKS


Gallery

  • 3Dモデルから2D図面の作成

    配筋の3Dモデルを作成後、表示したい断面を配置し、従来のような2D図面を作成。

  • 3D都市モデルPLATEAU×都市計画

    国土交通省が提供する3D都市モデルPLATEAUをベースに、まちづくりの方針を色分けで表現。

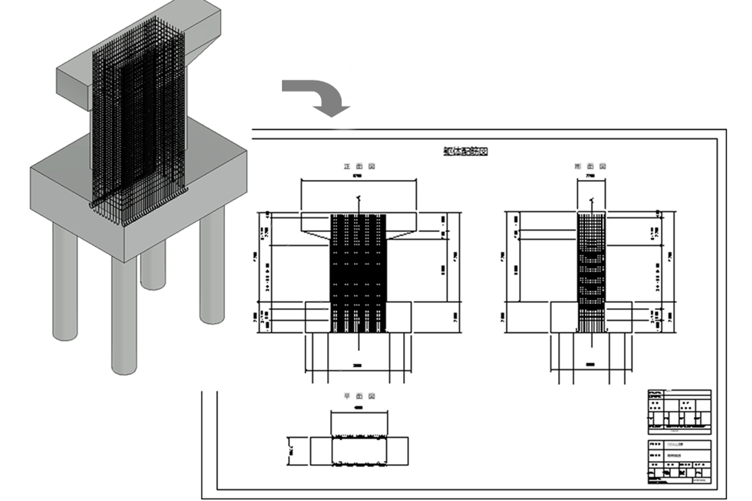
  • 3D配筋モデル

    2D図面から3D配筋モデル作成。2次元では部材ごとに作成されていた配筋図を統合することが可能。

  • 統合モデル

    高架橋の構造物モデル(3Dモデル)を作成後、地形モデルと統合。

  • 建築CGパース(外観)

    2次元図面をもとに建築パース図を作成。

  • 鉄筋干渉チェック

    2D図面から3Dモデルを作成し、干渉チェックを実施。

  • 計画土量の算出

    現況地盤や計画地盤をサーフェス(面)で表現し、2つのサーフェスの標高差に基づいて土量を算定。

  • 建築CGパース(外観)

    2次元図面をもとに建築パース図を作成。

  • 公園CGパース(鳥瞰レベル)

    2次元図面をもとに公園パース図を作成。

  • 施工シミュレーション(4Dモデルの作成)

    施工ステップに沿って3Dモデルを作成し、各段階に時間の情報を加えることで、施工ステップをアニメーションで表現。

  • 土木CGパース×照明シミュレーション(昼白色)

    遊歩道の3Dモデルを作成し、CGパースを作成。防犯灯は、配光(IES)ファイルなど照明器具が持つデータを使用することで、設置後の夜間のイメージを視覚化。

  • 土木CGパース×照明シミュレーション(電球色)

    遊歩道の3Dモデルを作成し、CGパースを作成。防犯灯は、配光(IES)ファイルなど照明器具が持つデータを使用することで、設置後の夜間のイメージを視覚化。

  • 視認性確認

    トンネルおよび橋梁の構造物モデル(3Dモデル)を作成し、地形モデルと統合した後、走行シミュレーションを実施。

  • 視認性確認

    新設橋梁の構造物モデル(3Dモデル)を作成し、地形モデル等と統合した後、立体交差する既設道路からの視認性を確認。

  • 土木CGパース×照明シミュレーション

    橋梁の3Dモデルを作成し、CGパースを作成。高欄照明は、配光(IES)データなどを反映。

  • 点群データ×3Dモデル

    計画構造物(横断歩道橋)の3Dモデルを作成し、周辺点群データと合成。

  • 土木CGパース(橋梁補修)

    橋面の3Dモデルを作成し、現況写真と同じアングルでレンダリングした後、合成。

  • 土木CGパース(橋梁新設)

    高架橋の3Dモデルを作成し、現況写真と同じアングルでレンダリングした後、合成。

  • 統合モデル

    高架橋の構造物モデル(3Dモデル)を作成後、地形モデルと統合。

  • 建築CGパース(内観)

    間取り図からモデリングを行い、CGパースを作成。

  • 土木CGパース(無電柱化)

    道路の3Dモデルを作成し、現況写真と同じアングルでレンダリングした後、合成。

    recta 3D works
    【受付時間】平日AM 9:00 ~ PM 5:00
    n.yoshizawa@r3dw.jp